WOHNUNGSBAU
WOHNEN IM DENKMAL
KLEINE FREIHEIT 68, HAMBURG
STUDIE / WETTBEWERB
2011
AUFTRAGGEBER
wph Wohnbau- und Projektentwicklung Hamburg GmbH
LEISTUNGEN
LP 1-3
BGF
ca. 3.280 m²
KOSTEN
ca. € 1,6 Mio
WOHNUNGSBAU
WOHNEN IM DENKMAL
KLEINE FREIHEIT 68, HAMBURG
Ein funktionierendes Pestalozzi-Quartier im Herzen von St. Pauli ist abhängig von der umfeldgerechten Umnutzung der ehemaligen Pestalozzi-Schule. Bei dem historisch wertvollen Bau ist besondere Sensibilität bei der Verknüpfung alter und neuer Nutzungen erforderlich. Das Nutzungskonzept berücksichtigt die Struktur des denkmalgeschützten Schulgebäudes Gustav Oelsners von 1927 und beinhaltet die behutsame Transformation zu zeitgerechten Erfordernissen hin.
Fast 2/3 des Gebäudes ist dem Wohnen vorbehalten, wohingegen die Turnhalle weiterhin für sportliche Aktivitäten genutzt werden wird. Bei allen Nutzungen bleibt der ursprüngliche Raumeindruck auch zukünftig erleb- und erfahrbar.
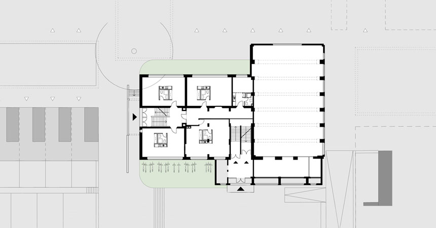
Das Wohnen als zukünftige Hauptnutzung ist in den ehemaligen Unterrichtsräumen angesiedelt. Als Typologie werden Wohnlofts mit offenen Grundrissen vorgeschlagen, da Eingriffe in die Substanz hierdurch minimiert werden können. Zudem bleibt der Raumeindruck der Klassenzimmer mit großen Fensterfronten und der Flure auch bei kompakter Wohnungsgröße weiterhin erhalten. Durch Gleitschiebetüren in inselartigen Boxen können separate Räume aus der großen Fläche abgeteilt werden.
Die wohnverträgliche, gewerbliche Ateliernutzung sowie die Aula befinden sich im 3. Obergeschoss. Vom nord-westlichen Treppenhaus her kommend, betritt man eine offene Atelier- und Loungelandschaft mit kreativer Ausstrahlung: den CoWorkingSpace. Hier wird Freiberuflern und jungen Kreativen die Möglichkeit geboten, kurz- bis langfristig Arbeitsplätze mit Büroinfrastruktur anzumieten. Vom Einzelarbeitsplatz bis hin zum vernetzten Zusammenarbeiten können alle Arbeitsstrukturen Berücksichtigung finden.
Die Transformation der Pestalozzi-Schule erfolgt konsequent nach der Maxime ‚Denkmal aussen wie innen’. Die Fassade bleibt inklusive der Fensterteilungen erhalten. Die Raumwirkung der Pausenhalle und Aula wird trotz Nutzungsänderung respektiert und gewahrt, was ebenso für die Klassenzimmer mit Loftwohnungen gilt.
Fast 2/3 des Gebäudes ist dem Wohnen vorbehalten, wohingegen die Turnhalle weiterhin für sportliche Aktivitäten genutzt werden wird. Bei allen Nutzungen bleibt der ursprüngliche Raumeindruck auch zukünftig erleb- und erfahrbar.
Das Wohnen als zukünftige Hauptnutzung ist in den ehemaligen Unterrichtsräumen angesiedelt. Als Typologie werden Wohnlofts mit offenen Grundrissen vorgeschlagen, da Eingriffe in die Substanz hierdurch minimiert werden können. Zudem bleibt der Raumeindruck der Klassenzimmer mit großen Fensterfronten und der Flure auch bei kompakter Wohnungsgröße weiterhin erhalten. Durch Gleitschiebetüren in inselartigen Boxen können separate Räume aus der großen Fläche abgeteilt werden.
Die wohnverträgliche, gewerbliche Ateliernutzung sowie die Aula befinden sich im 3. Obergeschoss. Vom nord-westlichen Treppenhaus her kommend, betritt man eine offene Atelier- und Loungelandschaft mit kreativer Ausstrahlung: den CoWorkingSpace. Hier wird Freiberuflern und jungen Kreativen die Möglichkeit geboten, kurz- bis langfristig Arbeitsplätze mit Büroinfrastruktur anzumieten. Vom Einzelarbeitsplatz bis hin zum vernetzten Zusammenarbeiten können alle Arbeitsstrukturen Berücksichtigung finden.
Die Transformation der Pestalozzi-Schule erfolgt konsequent nach der Maxime ‚Denkmal aussen wie innen’. Die Fassade bleibt inklusive der Fensterteilungen erhalten. Die Raumwirkung der Pausenhalle und Aula wird trotz Nutzungsänderung respektiert und gewahrt, was ebenso für die Klassenzimmer mit Loftwohnungen gilt.
WOHNEN IM DENKMAL KLEINE FREIHEIT 68, HAMBURG
INFO




